Maison du 18ème siècle avec grand garage avec possibilité de mettre 3 véhicules au cœur du centre historique
Découvrir le bien
Située en plein centre historique de Bourges, cette superbe maison du XVIIIe siècle offre une surface habitable de 200 m2, alliant charme de l’ancien et confort moderne.
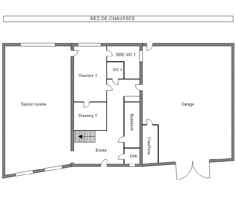
Dès l’entrée, vous serez séduit par un vaste séjour-salon traversant de plus de 55 m2, sublimé par de belles poutres apparentes, et sa cuisine ouverte, aménagée et équipée. Au rez-de-chaussée, vous trouverez également une chambre avec dressing, salle d’eau privative et WC, ainsi qu’une buanderie et une pièce de rangement.
À l’étage, un palier dessert trois grandes chambres, un bureau ou chambre d’enfant, ainsi qu’une salle d’eau avec WC. Un grenier non aménagé de 30 m2 offre un potentiel supplémentaire.
À l’extérieur, une belle terrasse de 25 m2 accessible par un escalier en pierre. Deux caves voûtées complètent ce bien.
Enfin, un grand garage de 69 m2 avec porte motorisée permet d’accueillir jusqu’à trois véhicules, un atout rare en centre-ville !
Huisseries double vitrage, chaudière gaz – DPE C, pas de travaux sur le gros oeuvre à prévoir
Les informations sur les risques auxquels ce bien est exposé sont disponibles sur le site Géorisques
Général
18000
m²
200 m²
4
5
1
Détail +
2
GAZ_VILLE
CHAUDIERE
TYPE_CHAUFF_CHAUDIERE
INDIVIDUEL
1
SUD-EST
1789
0
3
0
1
Financier
384900 €
365000 €
5.45 %
2379 €
€ / par an
m²
m²
m²
m²
m²
m²
m²
Bilan énergétique
Diagnostic de performance énergétique
172
KWh/m².an
20
kg CO2/m².an
Consommations non exploitables
* Dont émissions de gaz à effet de serre
20
KgéqCO2 / m².an
Consommations non exploitables
117
2241 €
3033 €


















