Exclusivité Charmante maison des années 30 rénovée, à deux pas du centre-ville de Bourges avec jardin et gar
Découvrir le bien
Découvrez en exclusivité cette belle maison des années 30, rénovée, d’une surface de 90,27 m2, idéalement située à deux pas du centre-ville de Bourges, au pied de la Trouée Verte.
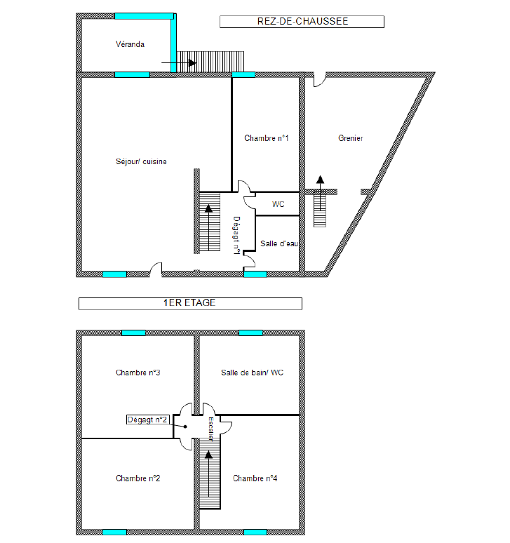
Elle se compose au rez-de-chaussée d’une agréable pièce de vie avec parquet, ouverte sur une cuisine aménagée et équipée, agrémentée d’un poêle à bois et d’une climatisation réversible, avec accès direct à une véranda et son jardin. Un sas dessert une chambre de plain-pied avec parquet, pouvant également convenir parfaitement à un bureau, ainsi qu’une salle d’eau et un WC indépendant.
À l’étage, un palier distribue trois chambres ainsi qu’une salle de bains avec WC.
À l’extérieur, vous profiterez d’un agréable jardin, avec possibilité de créer un potager et de profiter des arbres fruitiers, d’une belle terrasse semi-couverte, ainsi que d’un garage avec espace de rangement et d’un grenier au-dessus, offrant un potentiel d’aménagement supplémentaire.
La maison dispose également d’une cave-atelier et d’une seconde cave avec espace buanderie.
DPE : D
Une maison pleine de charme, alliant le cachet de l’ancien et le confort. Idéal famille proximité commodités et écoles.
Les informations sur les risques auxquels ce bien est exposé sont disponibles sur le site Géorisques
Général
18000
453 m²
90.27 m²
4
5
1
Détail +
1
1
Americaine -Equipee
CLIMATISATION
AIR PULSE
TYPE_CHAUFF_AIR
TYPE_CHAUFF_POELE
INDIVIDUEL
1
1
2
0
1
Financier
238500 €
225000 €
6.00 %
1500 €
€ / par an
m²
m²
m²
m²
m²
m²
m²
Bilan énergétique
Diagnostic de performance énergétique
221
KWh/m².an
8
kg CO2/m².an
Consommations non exploitables
* Dont émissions de gaz à effet de serre
8
KgéqCO2 / m².an
Consommations non exploitables
132
1713 €
2317 €



















