Local commercial libre avec vitrine et possibilité de terrasse
Découvrir le bien
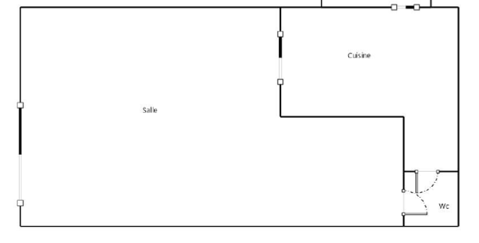
Ce local commercial dispose d’une vitrine, d’une superficie d’environ 58 m2. Il est situé en haut de la rue d’Auron, une artère commerçante de Bourges, et bénéficie de la possibilité de stationnement à proximité, ainsi que d’une terrasse.
Il offre des opportunités pour diverses activités, notamment une cuisine avec système d’extraction (pour une activité de restauration) ou d’autres types de commerces. Le local comprend également des toilettes séparées avec un lave-mains.’
Taxe foncière 725€ – Charges de copropriété annuelles 1245€ dont 790€ part locataire.
Potentiel locatif : 750€ TTC
Les informations sur les risques auxquels ce bien est exposé sont disponibles sur le site Géorisques
Général
18000
m²
58 m²
Détail +
0
Financier
59400 €
55000 €
8.00 %
0 €
€ / par an
m²
m²
m²
m²
m²
m²
m²
Bilan énergétique
Diagnostic de performance énergétique
KWh/m².an
kg CO2/m².an
Consommations non exploitables
* Dont émissions de gaz à effet de serre
KgéqCO2 / m².an
Consommations non exploitables
€
€





