Découvrir le bien
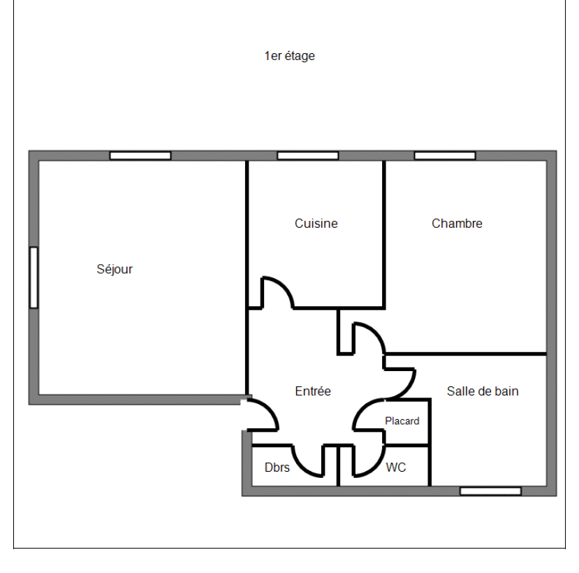
En exclusvité, à Bourges , idéalement situé à deux pas de la rue d’Auron, deux appartements T2 à vendre (copropriété de 3 lots (local pro) constitue une belle opportunité d’investissement locatif. L’ensemble est entièrement loué et se compose de Deux appartements T2, situés à l’avant du bâtiment, actuellement loués 420 € et 460 € hors charges, baux location nue.
Les huisseries sont en double vitrage neuves, chauffage electrique.
Une Situation stratégique, bon rendement locatif, potentiel de valorisation à long terme.
Les informations sur les risques auxquels ce bien est exposé sont disponibles sur le site Géorisques
Général
Code postal
18000
18000
Surface terrain
m²
m²
Surface habitable (m²)
110 m²
110 m²
Nombre de chambre(s)
2
2
Nombre de pièces
4
4
Nombre de niveaux
2
2
Détail +
Nb de salle de bains
Nb de salle de douche
2
2
Cuisine
Separee
Separee
Mode de chauffage
ELECTRIQUE
ELECTRIQUE
Type de chauffage
CONVECTEUR
CONVECTEUR
Format de chauffage
TYPE_CHAUFF_CONVECTEUR
TYPE_CHAUFF_CONVECTEUR
Format de chauffage
Format de chauffage
INDIVIDUEL
INDIVIDUEL
Terrasse
Exposition
SUD
SUD
Année de construction
Jardin
0
0
WC
2
2
Piscine
0
0
Garage
Financier
Prix de vente honoraires TTC inclus
159000 €
159000 €
Prix de vente net vendeur
150000 €
150000 €
Honoraires TTC à la charge acquéreur
6.00 %
6.00 %
Taxe foncière annuelle
1100 €
1100 €
Lot copropriéte
Nombre de Lots
19
19
Quote Part du lot
0 € / par an
0 € / par an
m²
m²
m²
m²
m²
m²
m²
Bilan énergétique
Diagnostic de performance énergétique
288
KWh/m².an
9
kg CO2/m².an
Logement économe
A
B
C
D
E
F
G
Logement énergivore
DPE vierge
Consommations non exploitables
Consommations non exploitables
Non soumis au diagnostic
* Dont émissions de gaz à effet de serre
Faible émission de GES
A
B
C
D
E
F
G
Forte émission de GES
9
KgéqCO2 / m².an
GES vierge
Consommations non exploitables
Consommations non exploitables
Énergie Finale
125
125
Estimation des coûts annuels minimum
1226 €
1226 €
Estimation des coûts annuels maximum
1658 €
1658 €
Energy Index in kWh/m2a: 288
Classe énergie: E
A+
A
B
C
D
288 kWh/m²a Energy class E
EF
G
H
Émissions de gaz à effet de serre kgCO2/m2a: 9
Greenhouse Gas Emissions index class: B
A+
A
9 kgCO2/m²a Greenhouse gas emissions class B
BC
D
E
F
G
Localisation du bien
Contactez-nous
Biens Similaires
174 900 €
Exclusivité appartement T3 dans un bel immeuble de charme au pied du Palais Jacques Coeur de Bourges
Pièces :
3Surface :
68 m2
146 500 €
Exclusivité Appartement traversant lumineux avec ascenseur et parking privatif
Pièces :
3Salles de bain :
1Surface :
65 m2
129 600 €
Exclusivité ! Quartier Commercant ! Idéal premier achat ou investissement locatif !
Pièces :
2Salles de bain :
1Surface :
56 m2












