Appartement-maison à aménager avec courette
Découvrir le bien
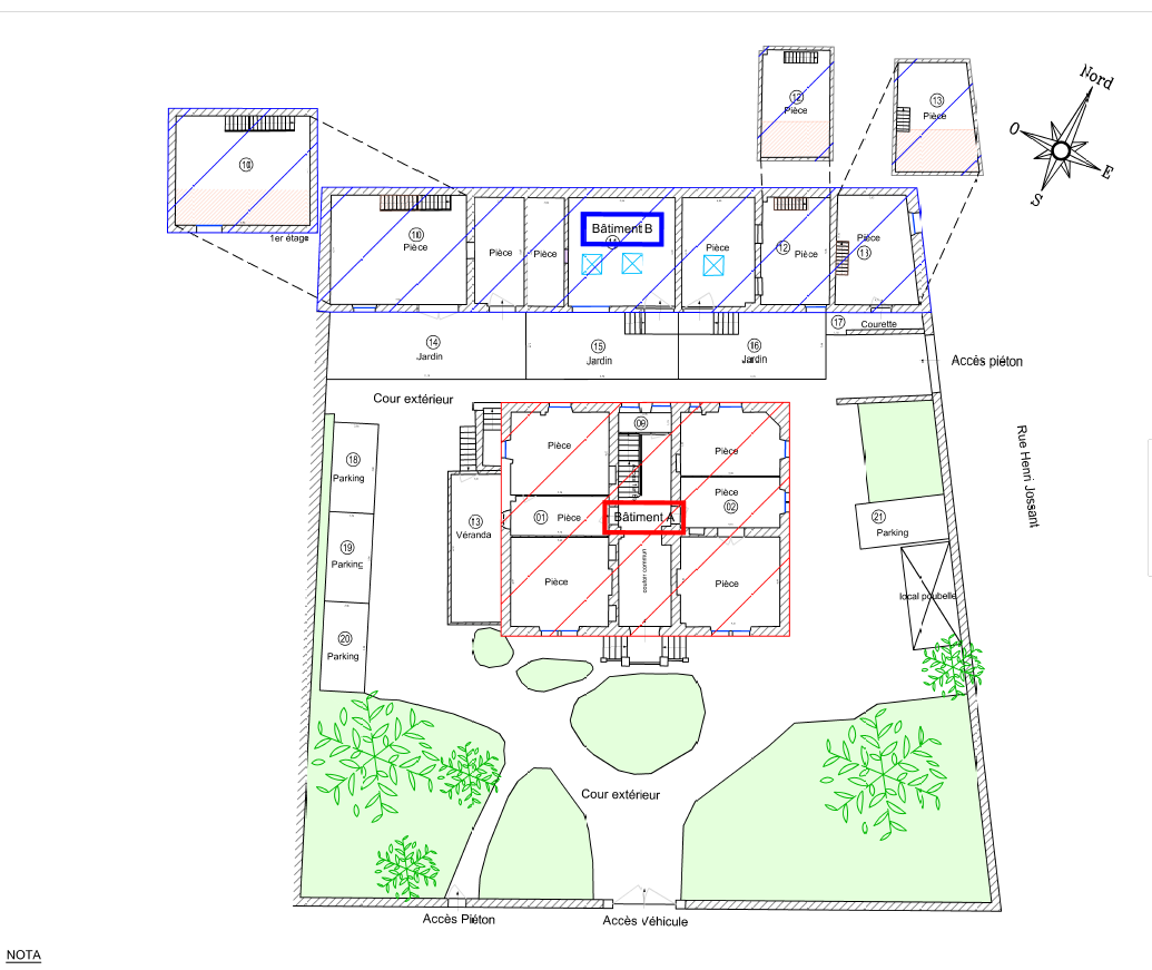
Dans une copropriété en cours de création de 12 lots, comprenant une maison de maître divisée en huit appartements et une longère avec quatre logements bénéficiant chacun d’un jardinet privatif.
Plateau brut de deux pièces d’une pièce avec mezzanine de 39.10 offrant la possibilité d’aménager une mezzanine.
Atouts : huisseries neuves, raccordements aux réseaux d’eau, d’électricité et de fibre.
Travaux prévus dans les parties communes : réfection de la toiture, de la structure, de la façade et des chemins d’accès. Le ravalement de la façade et du pignon côté rue sera réalisé en accord avec les recommandations des Architectes des Bâtiments de France (ABF). Toutes les ouvertures (fenêtres, portes, Velux) seront remplacées conformément aux prescriptions de l’ABF.
Copropriété en cours de constitution.
Les informations sur les risques auxquels ce bien est exposé sont disponibles sur le site Géorisques
Général
18000
m²
39.1 m²
2
Détail +
ELECTRIQUE
CONVECTEUR
TYPE_CHAUFF_CONVECTEUR
INDIVIDUEL
1
SUD-EST
0
Financier
76000 €
70380 €
8.10 %
€
0
12
0 € / par an
m²
m²
m²
m²
m²
m²
m²
Bilan énergétique
Diagnostic de performance énergétique
KWh/m².an
kg CO2/m².an
Consommations non exploitables
* Dont émissions de gaz à effet de serre
KgéqCO2 / m².an
Consommations non exploitables
€
€





